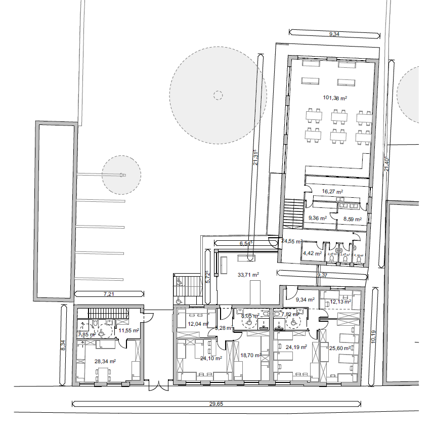
IQ401
Mintaterv: Idősek otthona.
Az épület paraméterei:
Összméret (bruttó): 512.33 m²
Tervezési ár: 3.500.000 Ft
Szerkezetkész ár: 243 000 000 Ft
Kulcsrakész ár: 425.000.000 Ft
Áraink nettó árak. Az Áfát nem tartalmazzák. A tervezési ár kizárólag az építész tervet tartalmazza, a szakági terveket nem.
A leírásban szereplő árak tájékoztató jellegűek, kalkulált árak. Pontos ár a végleges tervek és az ügyfél műszaki igényeinek ismeretében adható.
Tekintse meg korábban publikált mintaterveinket.
Tetszik új mintatervünk? Lépjen kapcsolatba velünk.
IQ402
Mintaterv: Kétszintes, 5 lakásos társasház.
Az épület paraméterei:
Összméret (bruttó): 238.09 m²
Tervezési ár: 475.000 ft/lakás
Szerkezetkész ár: 20 230 000 Ft/lakás
Kulcsrakész ár: 34.000.000 Ft
A megadott árak tervezésre és kivitelezésre vonatkozóan lakásonként értendőek. Átlagos bruttó lakásméret 47 m2.
Áraink nettó árak. Az Áfát nem tartalmazzák. A tervezési ár kizárólag az építész tervet tartalmazza, a szakági terveket nem.
A leírásban szereplő árak tájékoztató jellegűek, kalkulált árak. Pontos ár a végleges tervek és az ügyfél műszaki igényeinek ismeretében adható.
Tekintse meg korábban publikált mintaterveinket.
Tetszik új mintatervünk? Lépjen kapcsolatba velünk.



