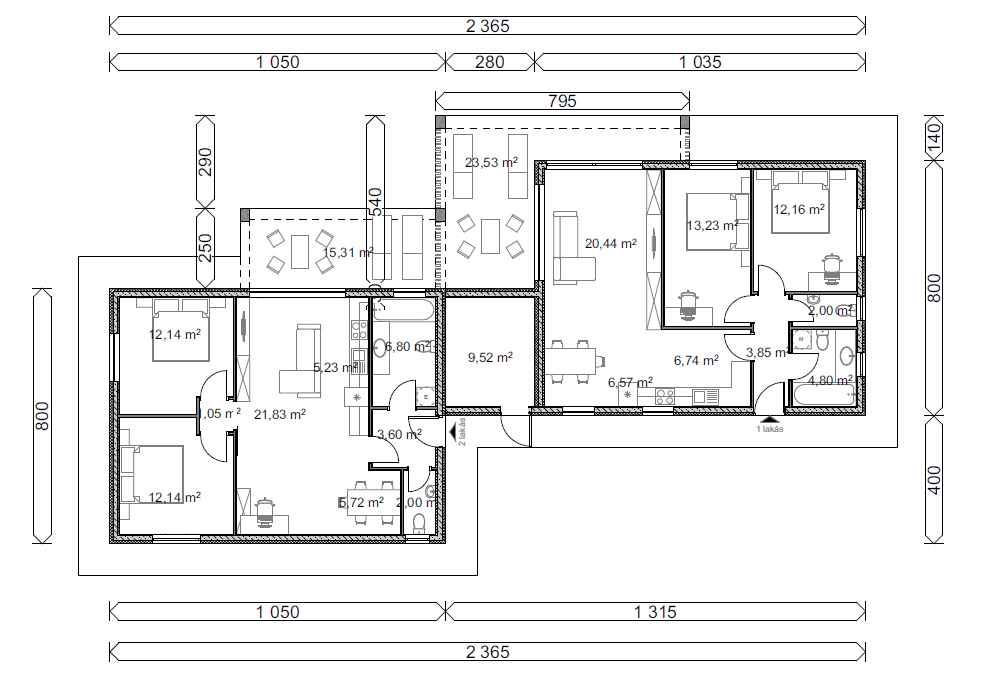
Alaprajz
Össz Bruttó alapterület: 178,00 m²
1. lakás+2. lakás+Gépészet helyiség Össz nettó: 149,82 m²
1. lakás nettó: 69,79 m²
2. lakás nettó: 70,51 m²

* Akár már IsoteQ PLUSZ, EXTRA építőelemből kivitelezett épület esetén.
Az IsoteQ PASSZÍV építőelemekből kivitelezett épület jobb energia besorolásba esik.
Az IsoteQ NORMÁL építőelemekből kivitelezett épület várhatóan “AA” energia besorolásba esik.
Terveink az IsoteQ® GROUP tulajdonát képezik, szerzői jogvédelem alatt állnak. A tartalom egészének vagy annak részeinek bármilyen formában történő átruházása, terjesztése, reprodukálása, kinyomtatása, saját használatot meghaladó mértékű tárolása vagy bárminemű egyéb felhasználása kizárólag az IsoteQ® GROUP előzetes írásbeli engedélyével lehetséges.
















