IQ407

Kulcsrakész ár:83.193.000 Ft

Áraink nettó árak. Az Áfát nem tartalmazzák. A tervezési ár kizárólag az építész tervet tartalmazza, a szakági terveket nem.
A leírásban szereplő árak tájékoztató jellegűek, kalkulált árak. Pontos ár a végleges tervek és az ügyfél műszaki igényeinek ismeretében adható.

Lapostetős, egyszintes családi ház, minimalista otthon.
Szerkezetkész ár: 48 768 000 Ft
Tervezési ár: 495.000 Ft
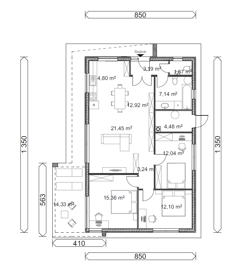
Összméret (bruttó): 114.75 m
Cikkszám: IQ407 Kategória:

További információk

Szintek száma

Forma

Összméret (bruttó m2)

* Akár már IsoteQ PLUSZ, EXTRA építőelemből kivitelezett épület esetén.
Az IsoteQ PASSZÍV építőelemekből kivitelezett épület jobb energia besorolásba esik.
Az IsoteQ NORMÁL építőelemekből kivitelezett épület várhatóan “AA” energia besorolásba esik.

Terveink az IsoteQ® GROUP tulajdonát képezik, szerzői jogvédelem alatt állnak. A tartalom egészének vagy annak részeinek bármilyen formában történő átruházása, terjesztése, reprodukálása, kinyomtatása, saját használatot meghaladó mértékű tárolása vagy bárminemű egyéb felhasználása kizárólag az IsoteQ® GROUP előzetes írásbeli engedélyével lehetséges.

3 in 1

Szolgáltatások

Tervezési szolgáltatások

Mintaterveink között böngészhet, és az Ön számára előnyöset csatolhatja árajánlatkéréséhez.

IsoteQ® építőanyagok

Olvasson építőanyagainkról, rendszereinkről, és győződjön meg azoknak előnyeiről és hatékonyságáról.

Kivitelezési szolgáltatások

Nincs kivitelezője? Ebben is segítünk! Tájékozódjon arról, hogyan építhetjük fel együtt álmai otthonát.

További információk

Szintek száma

Forma

Összméret (bruttó m2)