IQ148

Kulcsrakész ár:158.109.600 Ft

Áraink nettó árak. Az Áfát nem tartalmazzák.

Az épület szabadon álló telepítésre alkalmas. 2-3 gyermekes családok részére ajánlott, kétszintes családi ház garázzsal és üzlethelyiséggel.
Szerkezetkész ár: 96 544 800 Ft
Tervezési ár: Kérje egyedi árajánlatunkat
Összméret (bruttó): 279.84 m
Kategória:

További információk

Szintek száma

Forma

Összméret (bruttó m2)

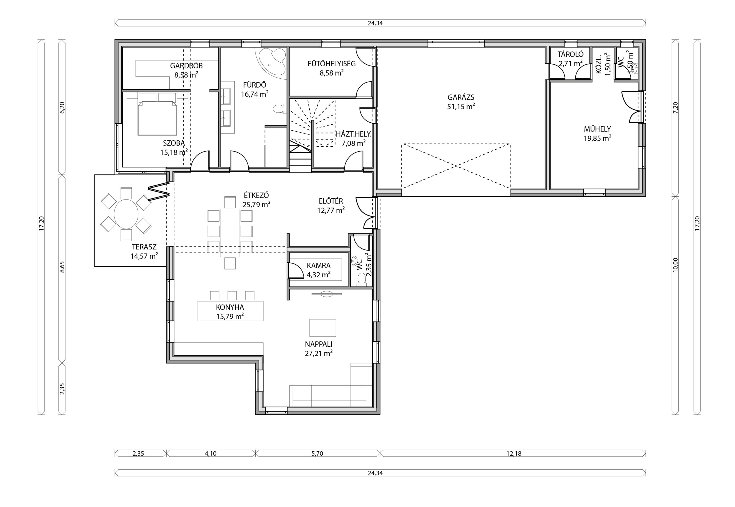
Földszinti alaprajz

Földszint bruttó alapterülete: 126,85 m²
Terasz: 14,57 m²
Gazdasági helyiség: 25,56 m²
Garázs: 51,15 m²

Emeleti alaprajz

Emelet bruttó alapterülete: 76,27 m²

* Akár már IsoteQ PLUSZ, EXTRA építőelemből kivitelezett épület esetén.
Az IsoteQ PASSZÍV építőelemekből kivitelezett épület jobb energia besorolásba esik.
Az IsoteQ NORMÁL építőelemekből kivitelezett épület várhatóan “AA” energia besorolásba esik.

Terveink az IsoteQ® GROUP tulajdonát képezik, szerzői jogvédelem alatt állnak. A tartalom egészének vagy annak részeinek bármilyen formában történő átruházása, terjesztése, reprodukálása, kinyomtatása, saját használatot meghaladó mértékű tárolása vagy bárminemű egyéb felhasználása kizárólag az IsoteQ® GROUP előzetes írásbeli engedélyével lehetséges.

3 in 1

Szolgáltatások

Tervezési szolgáltatások

Mintaterveink között böngészhet, és az Ön számára előnyöset csatolhatja árajánlatkéréséhez.

IsoteQ® építőanyagok

Olvasson építőanyagainkról, rendszereinkről, és győződjön meg azoknak előnyeiről és hatékonyságáról.

Kivitelezési szolgáltatások

Nincs kivitelezője? Ebben is segítünk! Tájékozódjon arról, hogyan építhetjük fel együtt álmai otthonát.

További információk

Szintek száma

Forma

Összméret (bruttó m2)